










































lieu : Noisy-Le-Roi
Maitrise d’ouvrage : Ville de Noisy-le-Roi
Budget :
Mission : MOP
Cheffe de projet : Chloé Goutille
Architectes Associés : Ithaques
BE TCE : Mécobat
Paysage : Chorème
La crèche, en cœur d’ilot, est à la fois très lisible depuis la rue et très discrète par rapport aux pavillons voisins.
Le camouflage emprunte au paysage existant : champs, pavillons, hangars agricoles, inscription dans la pente.
La façade rue évoque une grande maison en surplomb sur la rue; c’est le parvi en réalité qui confère son statut à cet équipement publique du quotidien.
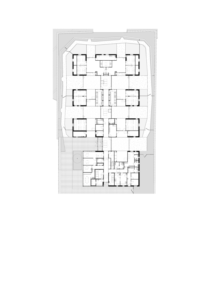
Un grand rectangle coupé en 4
Les services occupent le coté entrée avec les bureaux sur le passage des parents et la cuisine en retrait.
Les trois autres parties sont dédiées aux enfants. Six sections distribuées par une circulation centrale et reliées entre elles par des portes.
La cour est une succession de terrasses qui font le tour du bâtiment. La distribution centrale sert parfois de préau.
Le projet est très compact.
Favorable pour l’approche énergétique (chauffage). Défavorable pour l’éclairage naturel -> compensé par des éclairages zénitaux.
Eclairage zénithal favorable pour la qualité de l’air et (convenablement traité) pour l’acoustique. Défavorable pour le confort d’été > compensé par des protections solaires et une ventilation naturelle nocturne.
Le mode constructif, malgré une grande quantité de bois et relativement peu de béton n’est pas particulièrement exemplaire.
La modularité, l’évolutivité des équipements est un enjeu environnemental majeur. Trop de bâtiments, impossible à restructurer sont démolis, à l’image de l’école démolie pour construire cette crèche.
Le bâtiment est prévu pour être entièrement remanié si le programme évolue. La structure repose sur des poteaux périphériques. Les façades et le cloisonnement sont quasiment libres.


