
Lillebonne, Le Clairval





La cité du Clairval
Entre théâtre antique, basilique du XIIᵉ siècle et hôtel de ville de Claude Parent, le Clairval incarne la discrète modernité des années 1950.
Conçu par Delaune et Lamy, anciens collaborateurs de Perret au Havre, le projet d’origine s’organise sur une trame nord-ouest calée sur la rivière et les entrepôts voisins.
Une composition rationnelle et sensible : typologies répétées, séjours orientés au sud, volumes en L ou en U pour laisser entrer la lumière et ménager des respirations.




La réhabilitation a été menée en concertation avec les habitants, afin de préserver ce qui faisait sens pour eux et pour le quartier. Il ne s’agissait pas de transformer, mais de révéler ce qui était déjà juste : rouvrir les perspectives, rétablir la lisibilité du plan-masse, alléger les vis-à-vis.
Les séjours retrouvent leurs vues sur la vallée, les cheminements deviennent traversants, le site s’ouvre de nouveau sur la ville et le parc linéaire.




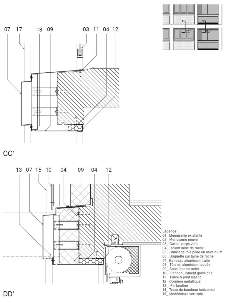
Les façades s’organisent autour d’une trame claire, horizontale et verticale, qui structure l’ensemble sans l’alourdir. Le béton lavé, repris sur les panneaux de ciment, apporte une texture fine ; ses légères variations de teinte permettent de distinguer les bâtiments en douceur. Les remplissages en brique font le lien avec le centre-bourg tout proche. Résultat : les 608 logements du Clairval s’inscrivent naturellement dans leur environnement, comme une pièce évidente du tissu existant.




Un quartier entier décliné en trois matériaux, dans une interprétation fidèle à l’esprit initié par Gaston Delaune et Jacques Lamy, prolongée par l’intonation portée par la seconde équipe en charge de l’architecture du lieu. L’ensemble, strictement constitué d’immeubles en R+3, semble ponctuellement varier en hauteur par la mise en œuvre de parements en aluminium brut en attique.





Lieu : Résidence Le Clairval, Lillebonne (76)
Maitrise d’ouvrage : Logéo Seine Estuaire
Budget : 21,1M€ HT
Mission : Complète · Marché Global de Performance
Responsable de projet : Julie Michel, Jean-Baptiste Petit
Architecte mandataire : litotes-Ithaques
MOEx : 02 Architecture
BE TCE-eco : Nortec
MOE social : H.E.R
Entreprise mandataire : Sogéa NRD-OUEST
2017 · marché sgné
2019 · septembre · début de chantier
2022 · février · livraison


