Litotes Hors série #7
47 pages
disponible sur Calaméo








1976, Robert Camelot
Avec deux tours savamment implantées Robert Camelot articule le bel alignement parisien de la rue de Tobiac avec la modernité éclectique d’un 13ème arrondissement alors en pleine mutation. Patrimoine « ordinaire », mais qui en imposent à la sortie du métro 14 ! Devenues palimpseste urbain, elles se relisent plutôt qu’elles ne se refont. Leur réhabilitation joue avec les traces, compose avec les strates, affine les échelles. Une modernité réécrite — un peu plus verticale, beaucoup plus habitée.










Préserver sans figer : la morphologie existante devient levier.
101 logements réhabilités en site occupé : isolation par l’extérieur, menuiseries neuves. L’ensemble respire, retrouve cohérence et rythme.
Le bâtiment se réinvente en deux registres : le socle et le corps de bâti. Le socle se réhausse, s’étire, devient double hauteur, avec un dessin subtil et la brique pointe sur les pignons qui joue avec l’épaisseur et la lumière. Le corps de bâti, rythmé horizontalement, alterne matériaux et légers reliefs : les strates originelles sont clarifiées, offrant une seconde lecture sensible. Ithaques fait vibrer l’ensemble par des nuances entre les deux tours et un calepinage fin de plaquette de parement.
Aux étages, les paliers s’éclaircissent et s’embellissent. Au rez-de-chaussée, le socle se réinvente pour accueillir un commerce.




Réhabilitation pensée comme potentiel.
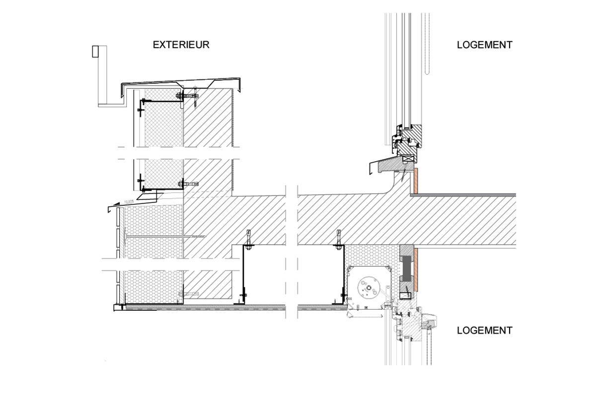
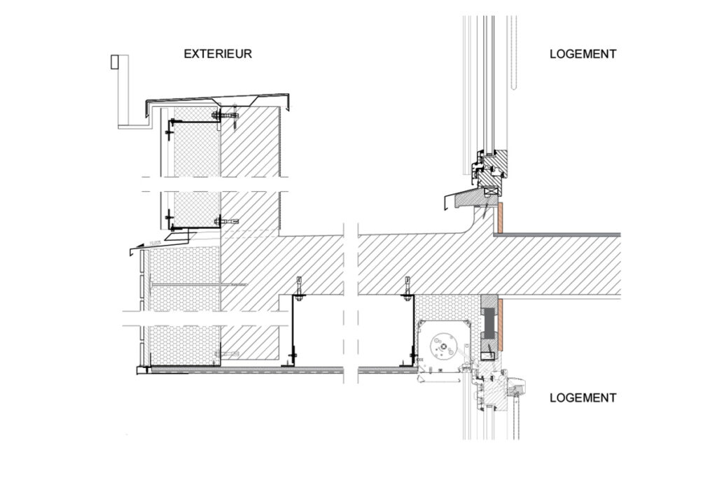
Pour l’atelier, la force du projet réside dans le soin apporté à chaque détail constructif.
Chaque détail de la réhabilitation devient opportunité d’usage. L’épaisseur des façades dissimule les pissettes des loggias, les garde-corps maçonnés équipés de lisses invitent à la végétalisation, le décalage des menuiseries crée des tablettes intérieures appropriables, et les murs épais des halls dessinent assises ou bibliothèques partagées. Chaque intervention dialogue directement avec les habitants.







Les locataires & leurs logements
Les travaux dans les logements occupés suivent cette même logique : rénovation des pièces humides selon l’état de chaque logement, remplacement des portes palières, mise aux normes électriques et ventilation naturelle. Le décalage des menuiseries crée des tablettes rapidement appropriées par les locataires. Toutes les loggias, pleines ou en serrurerie, ont été rénovées : l’épaisseur et la lisse sur mesure permettent de poser jardinières et végétaliser la façade, et les habitants se les sont pleinement appropriées pour leurs usages quotidiens. Le chantier devient un moment d’échanges entre habitants, ouvriers et architectes. Nous sommes d’ailleurs convaincue que c’est par cela que passe -entre autres- la réussite d’un bon chantier !
Lieu : 66/68 rue de tolbiac, Paris 13
Maitrise d’ouvrage : RIVP
Budget : 5,2M€ HT
Mission : Complète + DIAG
Responsable de projet : Léa Devaux
Architectes associés : Ithaques
BE TCE : Betom BET
BE HQE : CAP TERRE
AMO : Bio concept conseils
SATH developpement
CT : Bureau veritas
Entreprise générale : GENERE
1976 · date de construction
Robert Camelot · architecte
2 bâtiments R+12 · 101 logements · 8
162 m² shab
75 m² · 1 local commun
3 niveaux de sous-sol : chaufferie sous-station chauffage urbain,
caves et 107 places de stationnement
Mission Complète + DIAG
Surfaces 8 162 m² · shab réhabilités
145 m² · su créés · un local commercial
Performances NF Habitat HQE, label BBC Effinergie rénovation
Plan Climat Ville de Paris
2016 · lauréats
2016 – 2019 · suspension des études pendant travaux RATP
2022 · janvier · début de chantier
2024 · avril · livraison




